Let Agreed
Property Icon
£ 1,750/pcm
Chaucer Drive, London
1 Bedrooms End Terraced House

Description

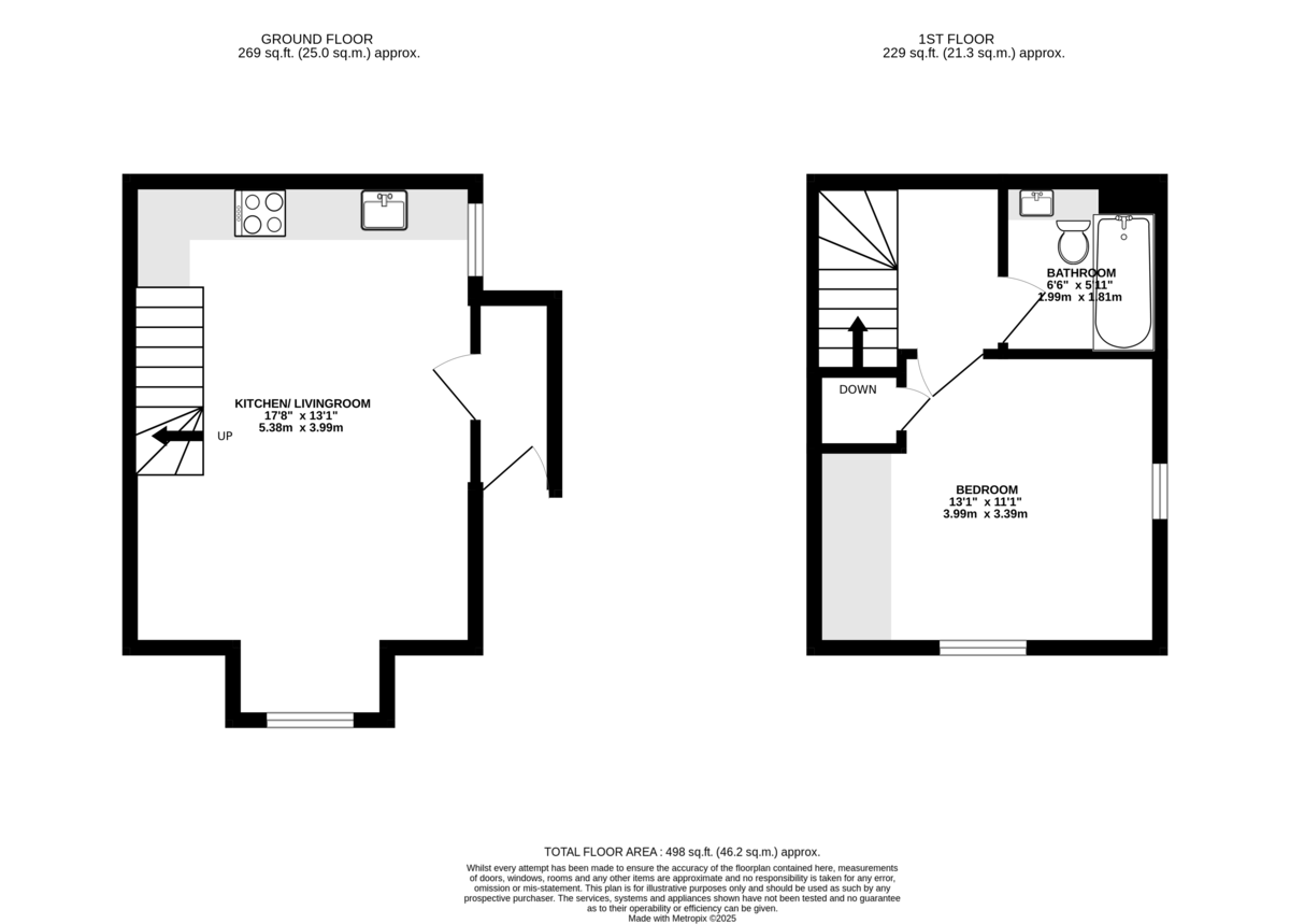
Bright one bedroom modern house with a sunny south-facing garden and a private parking space. Open-plan reception/kitchen downstairs and double bedroom with fitted wardrobe and bathroom upstairs.15 minute walk to South Bermondsey Station or London Bridge in 25. Close to excellent bus routes - being a short walk from Old Kent Road - where you can also access Burgess Park. Available unfurnished

Contact Agent

Urban Village Homes Limited
121 Denmark Hill
Camberwell
London
SE5 8EN
United Kingdom
Tel: 020 3519 9121
info@urbanvillagehomes.com

Property Features

  • One double bedroom
  • Open plan
  • South facing garden
  • Lots of natural light
  • Modern kitchen
  • Private parking space
  • South Bermondsey
  • Local amenities
  • Excellent bus routes
  • Burgess Park

Documents & Resources

Arrange a Viewing