Let
Property Icon
£ 2,300/pcm
Herne Hill Road, London
2 Bedrooms Penthouse

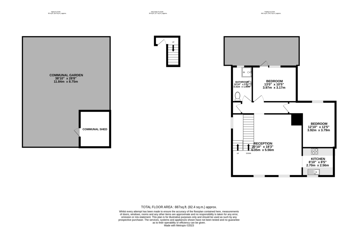
Description

An incredibly spacious two bedroom penthouse flat in the leafy borders of Herne Hill and Camberwell with off-street residential parking. Recently renovated to a very high standard this property has underfloor heating in the kitchen and bathroom, Swedish hardwood flooring, and plenty of natural light with dual-aspect views across the London skyline. Both bedrooms are of a good size, facing east over the communal garden, and are quiet and sunny. The kitchen is well apportioned, with stylish antique mirror backsplash against a modern white solid worksurface. Located just around the corner from Ruskin Park this flat is well suited for local amenities, transport, and culture. Camberwell and Herne Hill both have an excellent selection of pubs, restaurants and leisure faculties. Loughborough Junction and Denmark Hill Stations are just a short walk and Brixton Tube is a short bus journey away.

Contact Agent

Urban Village Homes Limited
121 Denmark Hill
Camberwell
London
SE5 8EN
United Kingdom
Tel: 020 3519 9121
info@urbanvillagehomes.com

Property Features

  • Large Open Plan Reception
  • Two Double Bedrooms
  • Underfloor Heating in Kitchen and Bathroom
  • Top Floor Flat
  • Modern Kitchen
  • Lots of Natural Light
  • Ruskin Park
  • Herne Hill
  • Denmark Hill Station
  • Loughborough Junction

Documents & Resources

Arrange a Viewing